
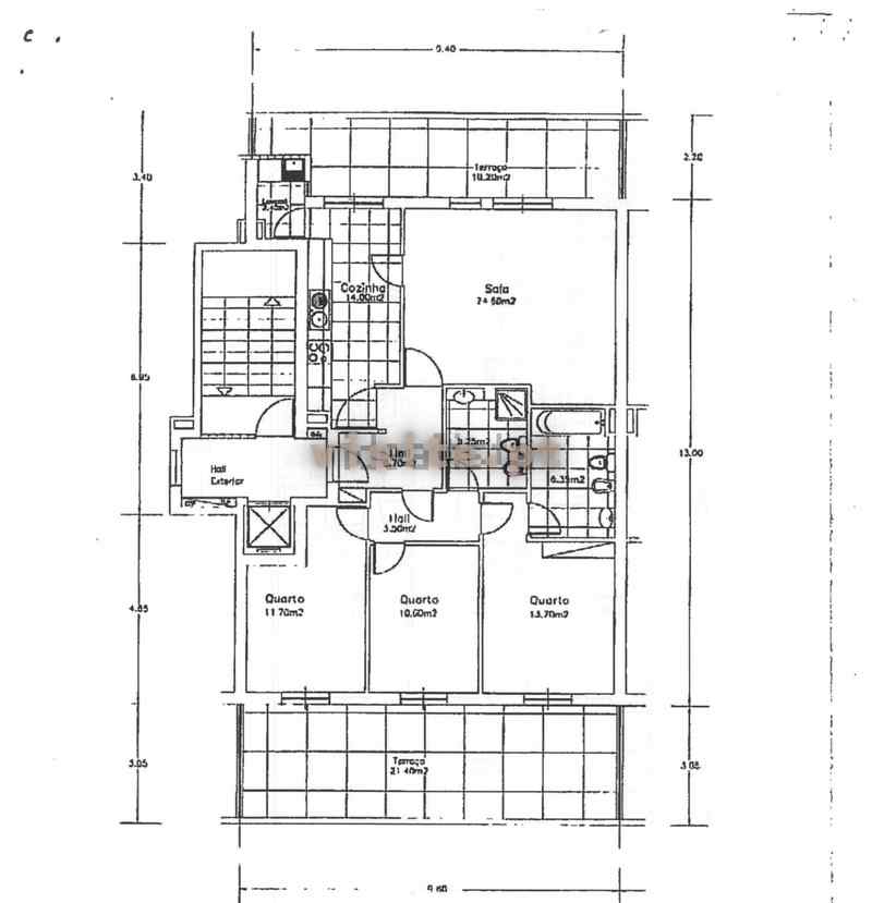
Apartamento T3 à venda , Avª dos Bombeiros Voluntários, Nossa Senhora do Amparo, Póvoa de Lanhoso
Apartamento T3 com cozinha mobilada e equipada, 2 wc’s completos com base de chuveiro, sala com recuperador de calor, quartos com armários embutidos, pré-instalação de ar condicionado e aquecimento elétrico. Tem 2 frentes uma com varanda de 15 metros e outra com marquise. Garagem fechada. Foi sujeito a obras de remodelação à cerca de 4 anos. Localizado no centro da vila.
Excelente oportunidade de negócio. Marque já a sua visita, sem compromisso.
Procura um imóvel de qualidade num local tranquilo, onde pode desfrutar das maravilhas da natureza e ao mesmo tempo estar perto da cidade? A tranquilidade e a serenidade não têm preço! Ligue-nos e nós encontramos a solução para si.
@erapovoadelanhoso
ERA IMOBILIÁRIA PÓVOA DE LANHOSO.



























