
Apartamento T2 à venda em Aradas, Aveiro
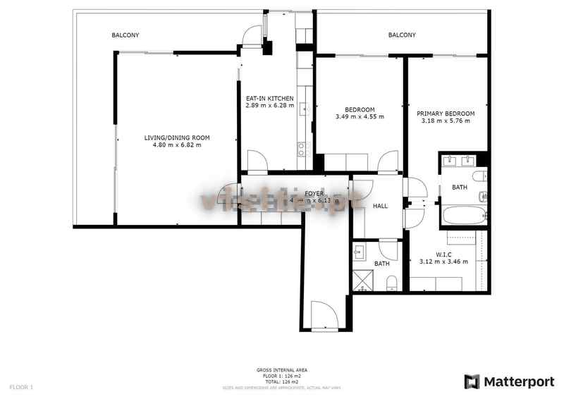
Apartamento T2+1 de luxo totalmente mobilado e equipado, situado a escassos passos do centro comercial Glicínias, e perto de todos os comércios e serviços.
Com domótica, aquecimento central, painéis solares, suite, roupeiros, alarme, porta de segurança, vídeo porteiro, caixilharia com vidro duplo de corte térmico, iluminação embutida em led, zona de tratamento de roupa convertido em closet com porta de acesso independente que se pode transformar em mais um quarto ou escritório, varandas, duas frentes.
Ainda dispõe de garagem fechada para dois automóveis e aspiração central.
Perto de universidade de Aveiro, Iscaa, acessos à A1 e A25 facilitados; uma das melhores localizações de Aveiro.
Marque já a sua visita!
Venha usufruir desta maravilhosa zona!
Invesdora, Lda.
AMI 18958.























