
Apartamento T2 à venda em Matosinhos Sul – Marginal, Matosinhos e Leça da Palmeira
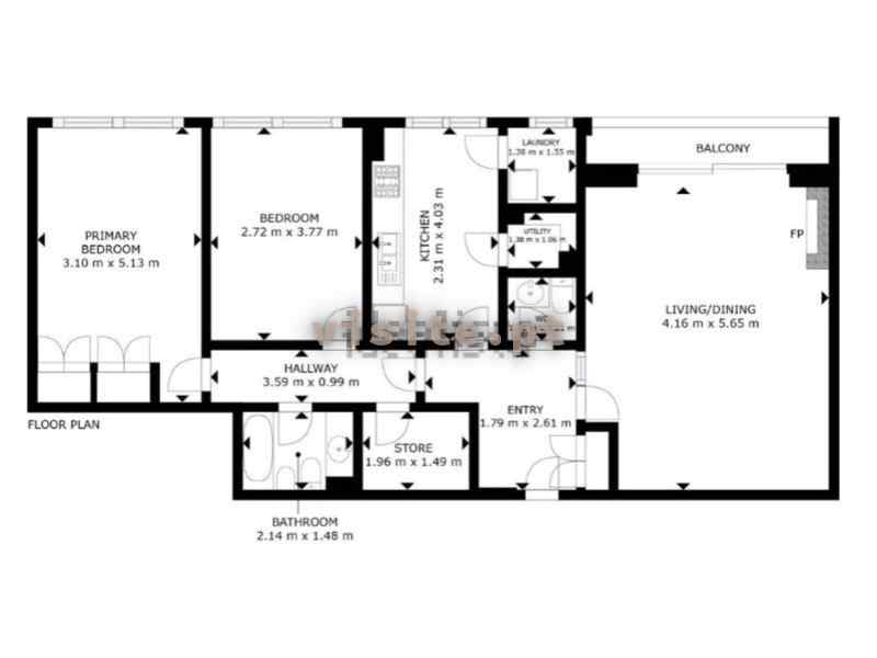
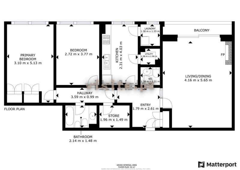
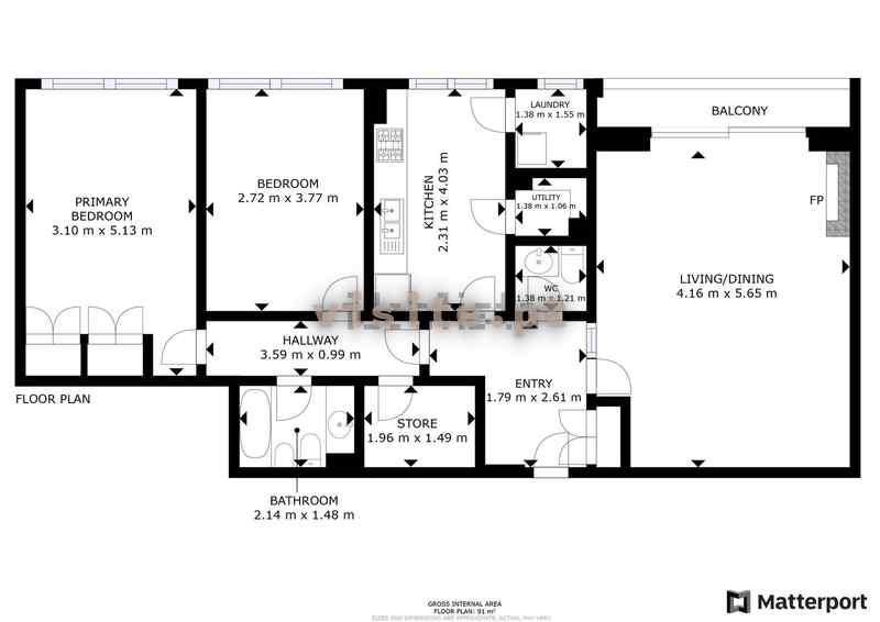
T2+1, com lugar de garagem (acesso por 2 ruas) em Matosinhos sul, junto ao mar e ao parque da cidade.
Apartamento virado a nascente, com aquecimento central, lareira, varanda, cozinha com lavandaria e despensa separadas (compartimentos autónomos), dois quartos + 1 quarto interior, 1 wc completo e 1 wc social.
1 lugar de estacionamento e arrumos.
Com paragem de Metro à porta e junto aos acessos rápidos para aeroporto, Porto e auto estradas.
Localizada na zona nobre de Matosinhos com lojas, farmácias, supermercados, hospitais, escolas perto.
Área bruta privativa: 85.09m2
Área bruta dependente: 19.50m2
Na PREDIBISA conhecemos o Porto como ninguém.
Se procura um lugar perfeito para viver ou investir, confie em quem conhece o Porto como ninguém. Nascemos aqui há 30 anos e movemo-nos com a confiança de quem cresceu com a cidade. Temos uma vasta experiência no mercado do Norte e uma rede de contactos privilegiada, que nos torna no parceiro certo para encontrar soluções imobiliárias completas e individualizadas em todas as áreas do setor.
Ponha à prova a equipa de especialistas da PREDIBISA.
O segredo do nosso sucesso é a nossa equipa, que cresce connosco desde o primeiro dia. A aposta no atendimento de excelência e no profundo conhecimento local diferencia-nos e posiciona-nos como uma consultora capaz de criar e antecipar oportunidades de negócio únicas.
Acreditamos que a experiência, o rigor, a transparência, o dinamismo e a competência que colocamos em prática dia após dia, são a nossa fórmula de sucesso para criarmos relações duradouras com os nossos clientes. Muitos deles contam connosco desde o primeiro ano.
















