
Apartamento T2 à venda em Montechoro, Albufeira, Albufeira e Olhos de Água
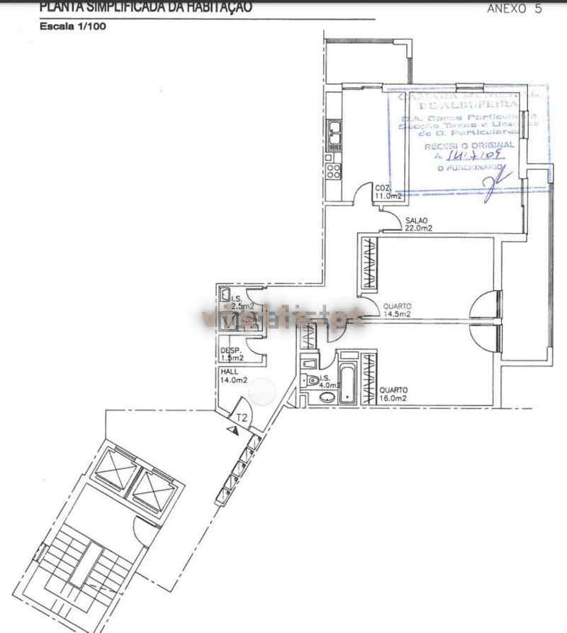
Oportunidade de investimento: T2, preparado para T3, com 117 m2 de área bruta, localizado numa zona nobre da cidade de Albufeira, a uma curta distância da praia e de todos os serviços.
È composta por sala de estar espaçosa, cozinha, dois quartos, sendo um deles em suite, WC completo, varandas grandiosas e garagem.
Albufeira é reconhecida internacionalmente pelas suas praias, são mais de vinte praias, todas com características únicas, desde as maravilhosas praias com falésias até às praias de areal extenso e tom dourado.
Caracterizada pela sua gastronomia à base de marisco e pescado, como grande parte do Algarve, esta distingue-se pela qualidade excepcional dos mais variados restaurantes aqui presentes
Albufeira apresenta a vida nocturna mais completa do Algarve, sendo reconhecida pelas fantásticas noites que proporciona a todos os que a visitam.
A poucos minutos das praias de Albufeira, ideal para casa de ferias ou habitação anual!
Marque já sua visita!


















