
Apartamento T2 à venda na rua António Ferro, Praia da Rocha, Portimão
Quer morar na Praia da Rocha? A mais famosa praia de Portimão?
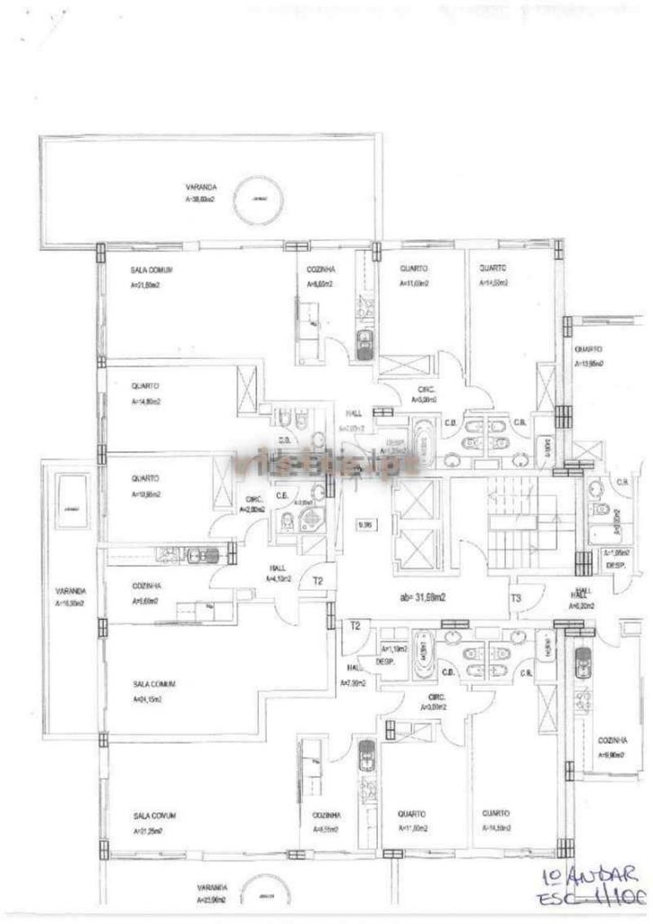
Apresento-lhe este fantástico apartamento com ótimos acabamentos, ar condicionado em todos as divisões, cozinha equipada, ampla sala, dois quartos, uma suíte e uma varanda espetacular para usufruir de um confortável jacuzzi.
Este apartamento fica no primeiro andar do Edifício Foz Palace Residences & SPA, prédio com arquitetura premiada: 1º premio de edifício habitacional do Algarve. Possui 2 elevadores, estacionamento, piscina interior aquecida, piscina infantil, jacuzzi, sauna, sala de jogos com bilhar e mesa de ping pong e ginásio equipado. Situado num local privilegiado, apenas a 200 metros da mais bela praia de Portimão.
Ao entrar, depara-se com um hall que faz a ligação da casa inteira.
A sala de estar/jantar tem duplo acesso direto a varanda, com o espaço necessário para uma excelente zona de refeições e uma zona de lazer e descanso com todo o conforto que merece com ar condicionado e aquecimento.
A cozinha também tem acesso direto à varanda, repleta de arrumação e pensada para ser prática ao dia-a-dia movimentado de cada pessoa. Equipada, com placa, extrator, forno, micro-ondas e termo acumulador.
Dois quartos espaçosos, ambos com roupeiros embutidos e ar condicionado e aquecimento, sendo que um deles em suíte, com base de duche para maior privacidade.
Na segunda casa de banho pode contar com uma banheira de hidromassagem para usufruir de um banho relaxante.
Na varanda, com mais de 38m2 encontrará amplo espaço para reunir a família e amigos, além de jacuzzi só para si.
Estacionamento privativo, com dois elevadores, spa com piscina aquecida, piscina infantil, jacuzzi, sauna, sala de jogos e ginásio, numa zona servida de comércios e serviços a poucos metros da praia.

























