
Apartamento T2 à venda na rua de Santa Teresa, São Vicente, Braga
Apartamento T2 equipado e mobilado com logradouro, no centro histórico.
O apartamento está em excelentes condições de conservação, como novo, pois foi construído de raíz e terminado no início de 2022. Como tem duas frentes tem bastante luz natural.
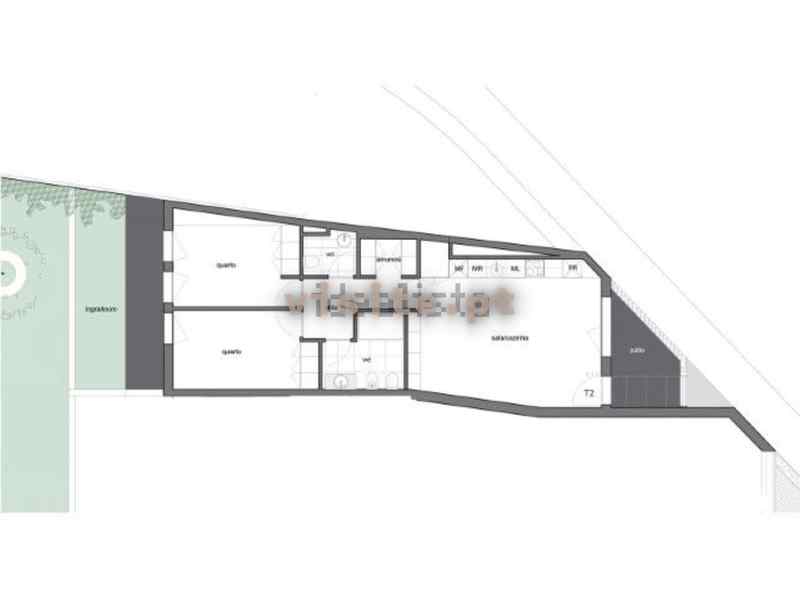
Com dois quartos com acesso ao logradouro, sala e kitchenette estilo "open space", duas casas de banho. Tem uma entrada independente com um pátio. O logradouro fica nas traseiras, virado para uma zona privada de uso exclusivo dos moradores.
Os quartos têm roupeiros embutidos lacados a branco mate e bastante luz natural.
A kitchenette está equipada com máquina de lavar e secar roupa, forno ventilado, placa, exaustor, combinado, máquina de lavar loiça, micro-ondas, máquina de café e "airfryer". Com móveis lacados a branco mate, bancada com iluminação LED e tampo de balcão e contrabalcão em Quartz Design da Compac.
As casas de banho têm loiças sanitárias suspensas e espelho. Uma delas é de serviço e a outra é completa, com base de duche com resguardo de vidro.
O logradouro é bastante espaçoso e tem relva sintética, sendo possível colocar uma mesa e cadeiras, criando assim uma zona de lazer aprazível.
O apartamento está totalmente mobilado, com mobiliário moderno, funcional e elegante. Tem também todos os têxteis necessários, incluindo cortinados até ao teto.
Com pavimento flutuante, tetos falsos com sancas para cortinados, porta de entrada de segurança, carpintaria até ao teto lacada mate, videoporteiro, sistema de climatização através de piso radiante (aquecimento e arrefecimento), bomba de calor com termoacumulador para o aquecimento de águas sanitárias, sistema de domótica que integra videoporteiro, alarme e estores, brisas solares elétricas, caixilharia em alumínio com rutura térmica e vidro duplo, iluminação embutida.
Tem também uma arrecadação privada na zona comum.
Está localizado no centro histórico de Braga, tendo por isso fácil acesso a todo o tipo de serviços e comércio, bem como a transportes públicos. Com estacionamento público e zonas verdes nas proximidades.
Assim, fica a 65m da Igreja de S. Vicente e da Faculdade de Filosofia da Universidade Católica, a 190m da Praça Mouzinho de Albuquerque, a 400m da Rua dos Chãos e de todo o centro histórico e emblemático da cidade.









































