
Apartamento T2 à venda na rua Nova Lisboa, Maninho – Baviera, Madalena
Apartamento T2, para venda, na Madalena, Vila Nova de Gaia.
Localizado a nível de um primeiro andar com elevador, a escassos metros dos acessos à A44.
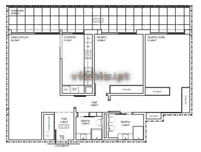
Com 102m² de área, 1 frente (NASCENTE), este imóvel é composto por:
– Hall de entrada com 2.80m²;
– Cozinha com 9.10m² equipada com electrodomésticos marca SIEMENS – placa de indução, forno, exaustor, microondas, frigorifico combinado; máquina de lavar loiça e máquina de lavar roupa;
– Sala comum com 26.70m²;
– WC de apoio à zona social e a um dos quartos com 3.20m²;
– Quarto com 15m²;
– Suite com 21.60m² e banho com 4.60m²;
– Varanda com 22.80m² e com acesso pelos quartos, sala e cozinha;
– Lugar de Garagem Duplo com 24.90m² + Arrumo com 3.60m².
MAPA DE ACABAMENTOS:
1. Interiores
-> Hall – Quartos – Sala – Cozinha:
• Pavimento – Multicamadas em madeira de carvalho Americano com 3 mm de madeira nobre e 12 mm de contraplacado de bétula;
• Paredes – Gesso projetado pintado a cor branca;
• Tectos – Gesso cartonado pintado a cor branca;
• Rodapé – MDF laçado na cor branca.
2. Cozinha
• Pavimento – Multicamadas em madeira de carvalho Americano com 3mm de madeira nobre e 12 mm de contraplacado de bétula OU Acabamento cerâmico LOVE Séries White;
• Paredes – Gesso projetado pintado a cor branca;
• Tectos – Gesso projetado pintado a cor branca;
• Móveis de cozinha – Em acabamento Luz, incluindo tampo em Quartz compact;
• Equipamentos – Placa indução SIEMENS EH675FEC1E, Frigorífico combinado SIEMENS KI86VVSE0, micro-ondas SIEMENS BF525LMS0, máquina de lavar roupa SIEMENS WM12N269EP, máquina de lavar louça SIEMENS SN615X00AE; Forno SIEMENS HB537A0S0; Exaustor Frasa CORD II 90 IX S/Motor.
3. Sanitários
• Pavimento – Cerâmica Margres Prestige Calacatta 60X60 ou Cerâmica Love Marble White 60X60 ou Margres Evoque Light Grey 60X60;
• Paredes – Cerâmica Margres Prestige Calacatta 60X120 ou Cerâmica Love Marble White 45X120 ou Margres Evoque Light Grey 60X120;
• Tectos – Gesso Cartonado Hidrófugo;
• Móvel Lavatório Suspenso;
• Louça sanitária suspensa Valadares modelo arch (sanita e bidé);
• Base de duche Restone em ardosia a cor branca;
• Resguardo em Vidro;
• Torneiras W7 modelo Wkiara 001 – WC´s;
• Misturadora W7 modelo Wkiara 010/1.1;
• Lavatório embutido Valadares modelo tanger.
4. Carpintarias
• Portas Exteriores – Dierre modelo Sparta;
• Armários e Roupeiros – MDF lacado a branco;
• Portas Interiores – MDF lacado a branco quer as pivotantes quer as de correr.
5. Varandas
• Pavimento – Acabamento cerâmico Love Ground Light Grey 60X60;
• Vãos – Caixilharia em alumínio lacado com corte térmico e vidro duplo;
• Estores – Estores Elétricos como isolamento térmico lacado a cor da caixilharia.
6. Diversos
• Ar Condicionado Split Mitsubishi Kirigamine Zen;
• Aquecimento águas sanitárias – Bomba de Calor;
• Videoporteiro digita.
*O presente anúncio tem caráter informativo e não dispensa a visita ao imóvel nem a consulta dos respetivos documentos identificativos!
Não perca tempo… Agende já a sua visita!
Aqui, no Grupo Chave Nova, "damos casa, aos Seus sonhos!
Para além deste solução, dispomos de mais soluções que de certeza encaixam naquilo que pretende.
Tratamos de todo o processo de crédito habitação e acompanhamento até ao ato da escritura de forma gratuita.
Mais informações sobre este ou outro imóvel e marcações de visita, contacte-nos:
CHAVE NOVA – MADALENA
Rua António Francisco de Sousa, Nº584 – R/Chão Esq.
4405-996, Madalena – Vila Nova de Gaia.
222 444 629 / 939 672 002.



















