
Contactar
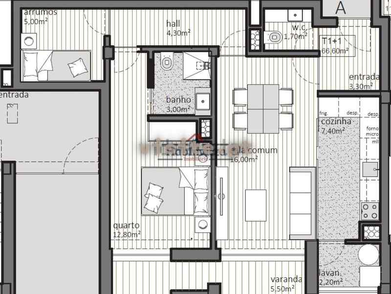
Apartamento T2 à venda na travessa Travessa Nova do Corim s/n, Águas Santas, Maia
Com um total de 30 apartamentos, dispõe de tipologias T1+1, T2, T2+1 e T3, distribuídos por 6 pisos.
O empreendimento Prime Living destaca-se pelas suas linhas modernas, varandas, terraços e acabamentos de excelência, onde o design e a funcionalidade comunicam de forma harmoniosa.
Com rápido acesso à A3 e A4, tem a localização priveligiada para quem procura viver num ambiente rodeado de natureza, com vários transportes, comércio, escolas e serviços próximos.
Detalhes
Tipo de Casa
:
Apartamentos
Preço
:
Preço sob consulta
Estado
:
Nova
Tamanho
:
82 m² área bruta
Andar
:
1º andar
Localização
:
Travessa Travessa Nova do Corim s/n; Águas Santas; Maia, Porto
Distrito
:
Águas Santas, Maia
Cidade
:
Maia, Porto
Contactar
Estrutura interna
Quartos
:
T2
Casas de banho
:
2
Características
Elevador
Lugar de garagem
Terraço


























