
Contactar
Apartamento T2 à venda no beco dos Caliços s/n, Centro da Cidade, Albufeira, Albufeira e Olhos de Água
Apartamento com linda vista mar localizado a apenas 400 metros da praia dos Pescadores numa rua tranquila em Albufeira ao pé de todo tipo de serviço e do centro histórico da cidade.
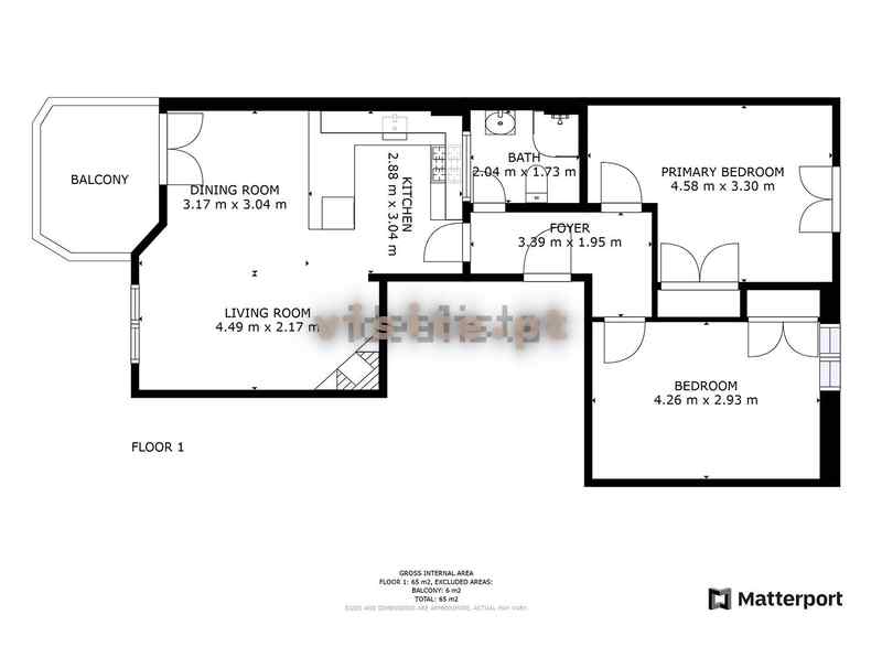
Inserido no primeiro e ultimo andar de um prédio residencial é composto por hall de entrada, uma casa de banho, 2 quartos com roupeiros embutidos sendo um com varanda, uma cozinha aberta e uma sala com varanda e com vista desafogada para a cidade e o mar.
Não perca e venha visitar!
Detalhes
Tipo de Casa
:
Apartamentos
Preço
:
Preço sob consulta
Estado
:
Segunda mão
Tamanho
:
66 m² área bruta/ 57 m² úteis
Andar
:
1º andar
Certificação energética
:
Classe energética:e
Localização
:
Beco dos Caliços s/n; Bairro Centro da Cidade; Albufeira; Albufeira e Olhos de Água; Albufeira, Faro
Distrito
:
Centro da Cidade, Albufeira, Albufeira e Olhos de Água
Cidade
:
Albufeira, Faro
Contactar
Estrutura interna
Quartos
:
T2
Casas de banho
:
1
Características
Arrecadação
Ar condicionado




















