
Apartamento T3 à venda em Furadouro, Ovar – São João – Arada – São Vicente de Pereira Jusã
Apartamento T3 em muito bom estado, localizado em condomínio de luxo na Praia do Furadouro.
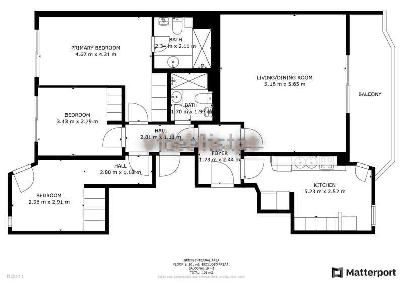
Inserido no 2º andar com elevador, este imóvel conta com 128,5m2 de área bruta privativa e é composto por:
– Hall de entrada;
– Cozinha equipada com forno, placa, exaustor e caldeira;
– Sala comum virada a nascente;
– Hall dos quartos;
– Uma suite com casa de banho completa, roupeiro embutido e acesso à varanda;
– Dois quartos com roupeiros embutidos;
– Uma casa de banho completa;
– Lavandaria;
– Varandas;
– Lugar de garagem;
– Caixilharia e vidros duplos;
– Vídeo porteiro;
– Elevador;
Este imóvel fica situado numa zona residencial perto de vários serviços e comércio, nomeadamente:
– Praia;
– Padarias;
– Restaurantes e cafés;
– Supermercados;
– Correios e papelarias;
– Comércio tradicional;
– Zona Comercial;
Dentro do condomínio poderá usufruir:
– Piscina Interior aquecida;
– Piscina exterior;
– Balneários;
– Duas saunas;
– Ginásio;
– Duas salas de squash;
– Sala de dança;
– Parque infantil;
– Salão de festas;
– Zelador 24horas por dia;
– Jardim em todo o condomínio.
Se está à procura de um apartamento com boas áreas, bons acessos e uma localização privilegiada, este é o imóvel para si.
Venha conhecer todos os pormenores.
Somos Intermediários de Crédito, autorizados pelo Banco de Portugal, tratamos de todo o processo de financiamento bancário.












































