
Contactar
Apartamento T3 à venda em Gafanha da Boa Hora, Vagos
Venha conhecer este Apartamento T3 na Praia da Vagueira.
Com excelentes acabamentos e uma ótima localização com vista para o mar, este imóvel é composto por:
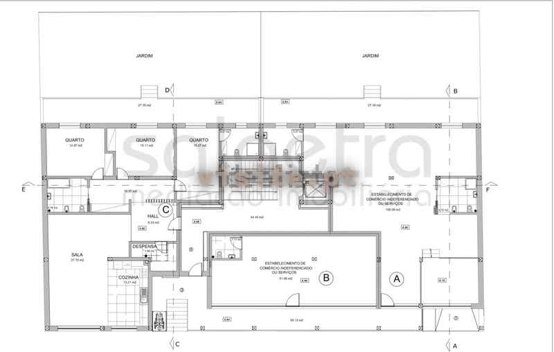
– Hall/Corredor;
– Sala;
– Cozinha;
– 1 Suite e 2 quartos;
– 1 casa de banho completa;
– Varandas.
– Garagem fechada;
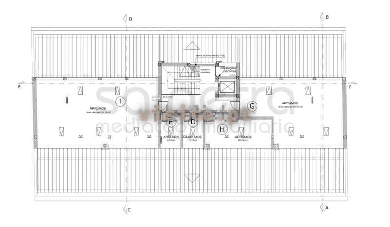
– Arrumos no sotão;
– Elevador até à garagem;
Situado no 1º andar.
Previsão de conclusão de obras no Abril de 2023.
Marque visita e conheça a memória descritiva.
Detalhes
Tipo de Casa
:
Apartamentos
Preço
:
Preço sob consulta
Estado
:
Nova
Tamanho
:
230 m² área bruta/ 176 m² úteis
Andar
:
1º andar
Certificação energética
:
Classe energética:b
Localização
:
Gafanha da Boa Hora; Vagos, Aveiro
Distrito
:
Vagos
Cidade
:
Vagos, Aveiro
Contactar
Estrutura interna
Quartos
:
T3
Casas de banho
:
2
Características
Elevador
Lugar de garagem
Arrecadação
Terraço

















