
Apartamento T3 à venda em Marina de Vilamoura, Vilamoura, Quarteira
Amplo apartamento T3 inserido em condomínio prestigiado a curta distância a pé da praia.
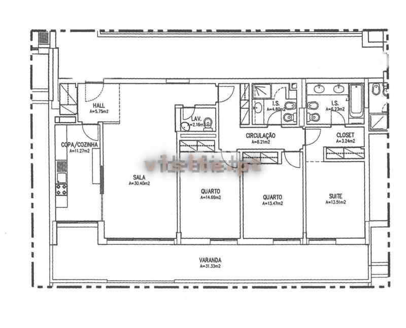
Com amplas áreas este apartamento é composto por um hall de entrada que nos conduz para a ampla e luminosa sala de estar / jantar com saída direta para o fabuloso terraço com vista Mar, cozinha totalmente equipada, três quartos com armários embutidos, dos quais dois em suite e mais uma casa de banho de serviço.
O espaçoso terraço é ideal para o espaço de lazer e para as refeições ao ar livre.
O apartamento encontra-se equipado com ar condicionado, vidros duplos e estores elétricos.
Situado em condomínio fechado com elevador, receção, áreas verdes e piscina comum.
Beneficia ainda de dois lugares de estacionamento em garagem fechada.
Distâncias:
Aeroporto de Faro (FAO): 25 km
Marina de Vilamoura: 0 km
Praia da Falésia: 0 km
Golfe: 2 km
Clínica Internacional de Vilamoura: 1 km
Farmácias: 1 km
Restauração: 0km
Excelente oportunidade de negocio, para rentabilizar e/ou habitação permanente.
Não perca esta oportunidade e marque já a sua visita connosco!
Temos uma equipa fantástica sempre à sua disposição – VAP TEAM!
VAP102369.





























