
Contactar
Apartamento T3 à venda em Moncarapacho e Fuseta, Olhão
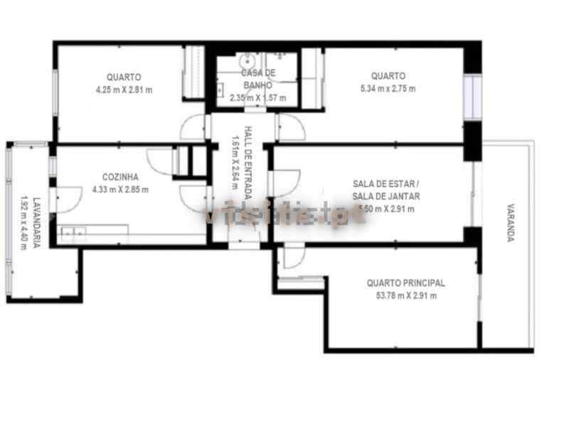
Esta grande oportunidade consiste na penthouse de um edifício de 4 pisos sem elevador, o prédio encontra-se perto de todos os serviços e comodidades que a charmosa Vila da Fuzeta tem para lhe oferecer, incluído supermercado, comboio, lavandaria, mercados e praias, entre outros.
A propriedade é composta por 3 quartos, um deles orientado para o campo e montanha e os outros dois para o mar, todos os quartos possuem roupeiro embutido, sala, casa de banho com base de duche, cozinha com zona de arrumos, uma varanda a tardoz fechada em marquise e na frente uma varanda aberta com vistas deslumbrantes para a Ria Formosa e para o mar.
Contacte-nos e saiba mais acerca oportunidade de investimento.
Aproveite já!
Detalhes
Tipo de Casa
:
Apartamentos
Preço
:
Preço sob consulta
Estado
:
Segunda mão
Tamanho
:
83 m² área bruta/ 73 m² úteis
Andar
:
4º andar
Certificação energética
:
Classe energética:e
Localização
:
Moncarapacho e Fuseta; Olhão, Faro
Distrito
:
Olhão
Cidade
:
Olhão, Faro
Contactar
Estrutura interna
Quartos
:
T3
Casas de banho
:
1

























