
Apartamento T3 à venda em Portas da Cidade – Alto das Vinhas Grandes, Montijo e Afonsoeiro
Apartamento T3 + 1 com excelentes áreas. Construção de qualidade e conforto.
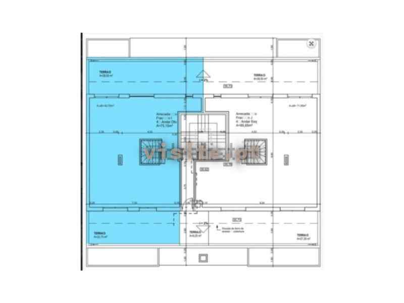
Hall de entrada com 2,95 m2; hall de circulação / quartos com 8,15 m2 e uma zona de vestuário de 4,40 m2; sala com uma varanda de 7,40 m2; cozinha de ( 17,70 m2 ) que se encontra totalmente equipada com electrodomésticos ( exaustor, máquina lavar e secar roupa, máquina lavar louça, frigorífico vertical, arca vertical, forno, micro ondas e placa de indução ) MíELE. Móveis termolaminados Fênix cinza e acesso a uma varanda com 4,15 m2; dois quartos ambos com roupeiros e acesso a uma varanda comum de 5,35 m2; quarto com roupeiro; duas instalações sanitárias com base duche, banheira e ambas com louças suspensas. Box nrº 4 ( 16,30 m2 ) na cave. Dois terraços ( frente e tardoz de 28,50 m2 e 22,75 m2 ) no piso superior. Salão / quarto interior de 75,15 m2.
Tectos falsos com iluminação LED embutida. Painéis solares de 300 Lts marca ‘ VULCANO ‘.
Louças sanitárias marca ‘ VALADARES ‘ com tampos de sanita de queda amortecida.
Ar condicionado ‘ Daikin ‘. Vidros duplos com janelas em PVC oscilo-batentes e com rotura térmica. Estores eléctricos em alumínio e térmicos. Pavimentos ( Quick-step ) flutuantes e revestimentos cerâmicos na cozinha e instalação sanitária. Roupeiros lacados a branco marca ‘ Sildoor ‘.
Porta blindada ‘ Dierre’.
*** Luz natural e boa exposição solar. ***
Localizado em zona tranquila e em expansão. Excelentes acessibilidades.
– A Informação disponibilizada não dispensa a sua confirmação nem pode ser considerada vinculativa.
Solicite informação ou marque a sua visita através dos nossos contactos!



































