
Apartamento T3 à venda em Santa Maria da Feira – Travanca – Sanfins – Espargo, Santa Maria da Feira
Apartamento T3 em Santa Maria da Feira em bom estado de conservação.
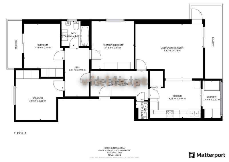
Imóvel no 3. º andar, com 133m2 de área e com três Frentes.
Apartamento composto por Hall de Entrada, Sala, Cozinha com móveis em madeira, lavandaria, três quartos com roupeiros, sendo um deles suite e uma casa de banho completa.
Dispõe ainda de elevador e lugar de garagem na cave.
Excelente exposição solar, muito iluminado devido às três frentes com varandas generosas.
Bom estado de conservação, pronto a habitar.
Edifício com Capoto.
Este apartamento encontra-se numa localização privilegiada, rodeado de transportes e acessos, perto de todo o tipo de comércio e serviços.
Não perca esta OPORTUNIDADE
A Cubic Opportunity – Mediação Imobiliária, Unipessoal, Lda. foi criada em 2014 com o objectivo de prestar um serviço especializado e abrangente em várias áreas, todas elas interligadas e dependentes, tais como imobiliária, financeira, obras, seguros e gestão, com o único intuito da máxima satisfação do cliente, uma vez que acompanhamos directamente todo o processo do início ao fim.
Formada por quadros licenciados em Gestão pela Faculdade de Economia da Universidade do Porto, e por consultores externos especializados, através de parcerias com as melhores empresas do sector e especialistas em diferentes áreas, a Cubic Oppotunity mostra um serviço diferenciador, inovador e multifacetado permitindo desta forma obter sempre as melhores soluções.
Marque já a sua visita
913 017 101
AMI 10354.





















