
Apartamento T3 à venda na avenida da Boavista, Parque da Cidade – Vilarinha – António Aroso, Aldoar – Foz do Douro – Nevogilde
Apartamento T3 na Boavista com uma vista desafogada e excelente exposição solar.
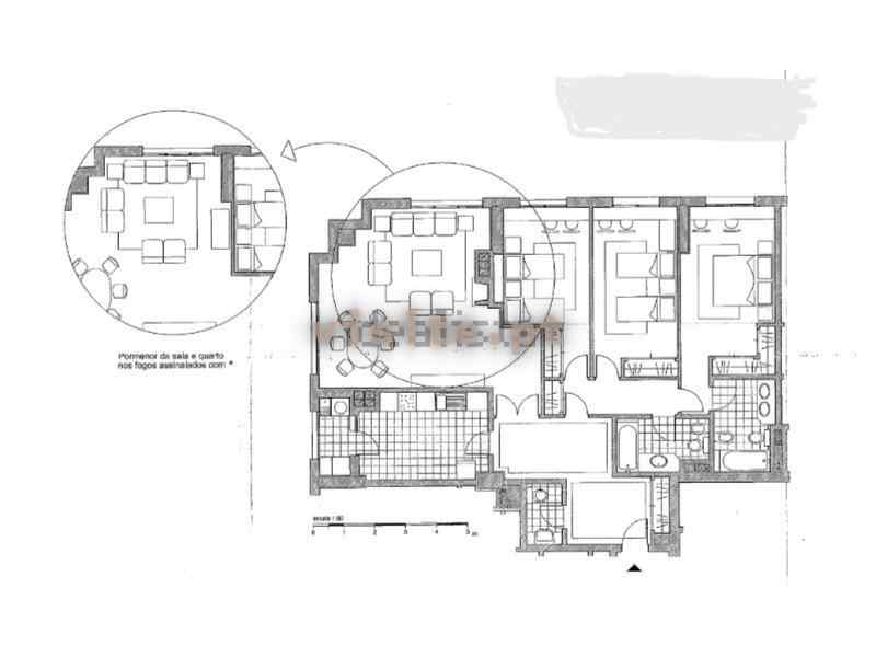
O apartamento tem um ótimo hall de entrada com piso em mármore e um grande roupeiro embutido, um wc social, uma cozinha equipada com forno, placa a gás, exaustor e máquina de lavar a loiça.
Grande sala comum voltada a poente e vista de mar nos dias de sol. A zona dos quartos é totalmente independente do resto da casa e é composta por 2 quartos com boas áreas e roupeiros embutidos apoiados por uma casa de banho completa e ainda uma suite principal, também com roupeiro. Há ainda mais um roupeiro embutido no hall dos quartos.
Aquecimento central e janelas duplas com vidros duplos proporcionando um excelente isolamento térmico e acústico.
O apartamento foi pintado há cerca de 18 meses e foram ainda substituídas todas as tomadas elétricas.
2 lugares de garagem e arrumo.
Prédio com porteiro 24 horas e sistema de vídeo vigilância.
3 elevadores, sendo um deles monta cargas.
Condomínio 150 euros/mês que inclui o fundo de reserva.



































