
Apartamento T3 à venda na avenida das Portas da Cidade, 19, Portas da Cidade – Alto das Vinhas Grandes, Montijo e Afonsoeiro
Identificação do imóvel: ZMPT553565
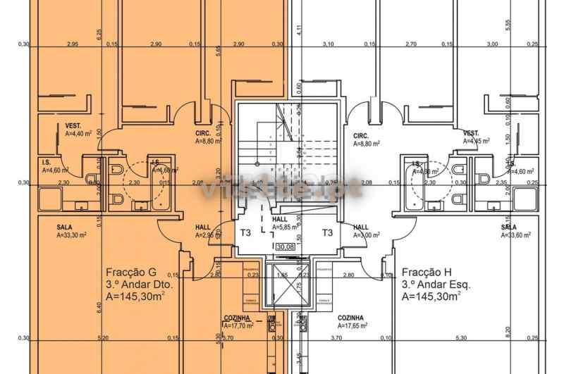
Fantástico apartamento T3 a estrear no Montijo, próximo de todos os acessos rodoviários, junto a comércio e serviços. Excelentes areas, edificio construido pela Matos Louro & Luis Lda, construtor de referência na zona. Acabamentos de topo que passamos a detalhar:
Cozinhas revestidas a Microcimento com Móveis cós Cinza e tratamento anti-dedada e madeira de Carvalho Rústico equipadas com electrodomésticos da Marca Miele compostas por Placa de Indução, Exaustor, Máquina de Lavar e Secar Roupa, Máquina de Lavar Loiça, Forno Pirolítico Forno/Microondas, Arca Vertical de Encastre, Frigorífico Vertical de Encastre ( Side by Side ), Tecto falso em Pladur com Leds e pavimento Cerâmico, varanda com Churrasqueira e arrumo para Tratamento de Roupa
Pavimento Flutuante QuickStep ( AC5) e rodapés em contraplacado marítimo folheado e lacado Branco, portas interiores em contraplacado maritimo folheado e lacado branco.
Janelas em PVC Oscilobatente marca Cortizo com vidro duplo e estores eléctricos em alumínio Térmicos.
Quartos com roupeiros lacados branco da Marca Sildoor e Ar Condicionado da Marca Daikin
WC`s com tectos falsos em pladur com Luzes Leds embutidas, loiças sanitárias da Marca Valadares com tampos de sanita de queda amortecida e torneiras da Marca Grohê Móveis Lacados Branco e Carvalho com Leds embutidos nas gavetas
Painéis Solares Termosifão de 300L de capacidade da Marca Vulcano
Resguardos de Banheira e Duche com tratamento anti-calcário da Marca Profiltek
Orientação solar Nascente/Poente
Conta ainda com Garagem Box
Venha conhecer a sua nova casa. Contacte para mais informações.
3 razões para comprar com a Zome
+ acompanhamento
Com uma preparação e experiência única no mercado imobiliário, os consultores Zome põem toda a sua dedicação em dar-lhe o melhor acompanhamento, orientando-o com a máxima confiança, na direção certa das suas necessidades e ambições.
Daqui para a frente, vamos criar uma relação próxima e escutar com atenção as suas expectativas, porque a nossa prioridade é a sua felicidade! Porque é importante que sinta que está acompanhado, e que estamos consigo sempre.
+ simples
Os consultores Zome têm uma formação única no mercado, ancorada na partilha de experiência prática entre profissionais e fortalecida pelo conhecimento de neurociência aplicada que lhes permite simplificar e tornar mais eficaz a sua experiência imobiliária.
Deixe para trás os pesadelos burocráticos porque na Zome encontra o apoio total de uma equipa experiente e multidisciplinar que lhe dá suporte prático em todos os aspetos fundamentais, para que a sua experiência imobiliária supere as expectativas.
+ feliz
O nosso maior valor é entregar-lhe felicidade!
Liberte-se de preocupações e ganhe o tempo de qualidade que necessita para se dedicar ao que lhe faz mais feliz.
Agimos diariamente para trazer mais valor à sua vida com o aconselhamento fiável de que precisa para, juntos, conseguirmos atingir os melhores resultados.
Com a Zome nunca vai estar perdido ou desacompanhado e encontrará algo que não tem preço: a sua máxima tranquilidade!
É assim que se vai sentir ao longo de toda a experiência: Tranquilo, seguro, confortável e… FELIZ!
Notas:
1. Caso seja um consultor imobiliário, este imóvel está disponível para partilha de negócio. Não hesite em apresentar aos seus clientes compradores e fale connosco para agendar a sua visita.
2. Para maior facilidade na identificação deste imóvel, por favor, refira o respetivo ID ZMPT ou o respetivo agente que lhe tenha enviado a sugestão.





























