
Apartamento T3 à venda na rua Antero de Quental, Matriz – Mariadeira – Nova Sintra, Póvoa de Varzim Cidade, Póvoa de Varzim – Beiriz – Argivai
Apartamento T3 – Póvoa de Varzim
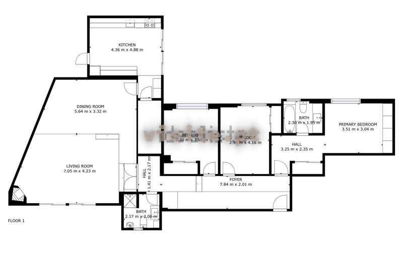
Apartamento T3 para venda, na Póvoa de Varzim, situado num rés-do-chão elevado e com grande terraço.
Este apartamento encontra-se em muito bom estado de conservação, fica em zona residencial de fácil acesso e com diverso comércio e serviços de proximidade. Dispõem de garagem fechada, elevador desde a garagem até ao andar, bastante luz solar, varanda e terraço.
Piso flutuante em todo o imóvel exceto nos wc’s e cozinha.
Cozinha renovada e equipada, wc’s renovados, gás canalizado, caixilharia dupla, aquecimento central, lareira com recuperador.
Área bruta de construção – 199m2
Área bruta privativa – 167m2
Área bruta dependente – 32m2
Área terraço – 67m2
Área útil – 144,50m2
Valor m2 (útil): 1.903€
Certificado Energético "C"
Marque a sua visita!
Valor: 275.000€
Ref. : 1551.






















