
Apartamento T3 à venda na rua Cidade de Ponta Delgada s/n, Centro do Montijo, Montijo e Afonsoeiro
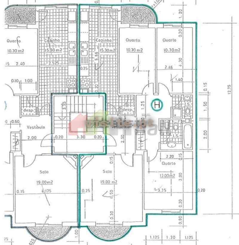
Apartamento T3 com arrecadação.
Á entrada temos um hall em chão mosaico cerâmico e ladrilho tradicional, um corredor de acesso distribuído para três quartos onde possui um roupeiro embutido.
Janelas e portas com caixilharia em alumínio.
Imóvel situado no 1º andar virado para as piscinas, possui 2 varandas, uma delas fechada.
Os três quartos com chão em madeira envernizada, e com boa exposição solar.
Duas casas de banho, uma de serviço com movel de lavatório e espelho de parede e a segunda com banheira, ambas em Chão mosaico cerâmico, e azulejos na parede até a cima.
A sala tem como aquecimento uma lareira e com acesso a uma das varandas.
A cozinha encontra-se semi equipada com fogão, forno e exaustor, moveis em madeira de cerejeira e Chão em mosaico cerâmico.
Zona envolvente às piscinas Municipais da freguesia do Montijo, escola básica e secundaria, e um parque minigolfe onde pode usufruir de atividades de lazer familiar, pista de skate.
Para o seu passeio matinal as praias do samouco, 2km da estação fluvial.
VAI PRECISAR DE FINANCIAMENTO BANCÁRIO?
Se sim, qual a sua opção, Spread mais baixo ou prestação mais baixa?
Nem sempre um “Spread mais baixo” faz com que pague menos pelo seu empréstimo bancário.
Para além de acompanhamento profissional antes, durante e após a aquisição do seu futuro imóvel, também podemos ajudar a escolher a melhor solução de financiamento.
O nosso grupo está autorizado pelo Banco de Portugal, através da empresa Versátilelenco (Intermediário de Crédito nº 4199), a prestar um serviço de consultadoria financeira, que lhe garante ter várias propostas de crédito devidamente explicadas, por forma a tomar uma decisão consciente e lucrativa.
Este serviço de Consultadoria Financeira, para si, é TOTALMENTE GRATUITO, considere-o como uma forma de boas-vindas a uma relação comercial que tudo iremos fazer para que seja longa e que a possa vir a recomendar aos seus amigos.
























