
Contactar
Apartamento T3 à venda na rua Entroncamento, Taíde, Póvoa de Lanhoso
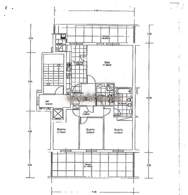
Apartamento T3, com excelente exposição solar, localizado em Taíde. Destaca-se pelas suas amplas áreas interiores e pela vista panorâmica. Apresenta ainda garagem fechada e um agradável jardim.
Marque já a sua visita, sem compromisso. Não perca esta oportunidade de um excelente negócio.
Procura um imóvel de qualidade num local tranquilo, onde pode desfrutar das maravilhas da natureza e ao mesmo tempo estar perto da cidade?
A tranquilidade e a serenidade não têm preço!
Ligue-nos e nós encontramos a solução para si.
@erapovoadelanhoso
ERA IMOBILIÁRIA PÓVOA DE LANHOSO.
Detalhes
Tipo de Casa
:
Apartamentos
Preço
:
Preço sob consulta
Estado
:
Segunda mão
Tamanho
:
110 m² área bruta/ 100 m² úteis
Andar
:
1º andar
Certificação energética
:
Classe energética:d
Localização
:
Rua Entroncamento; Taíde; Póvoa de Lanhoso, Braga
Distrito
:
Taíde, Póvoa de Lanhoso
Cidade
:
Póvoa de Lanhoso, Braga
Contactar
Estrutura interna
Quartos
:
T3
Casas de banho
:
2
Características
Elevador
Jardim
Terraço



















