
Apartamento T3 à venda na travessa de Silva Porto, Arca d’Água – Campo Lindo – Vale Formoso, Paranhos
Apartamento T3 junto à Universidade Fernando Pessoa
Muito bem localizado com excelentes acessibilidades, nomeadamente a VCI e ampla oferta de transportes públicos, com a estação de metro a apenas 800m.
Na envolvência encontra espaços verdes como os jardins de Arca D´Água, hospitais, serviços públicos e supermercados e ainda a Universidade Fernando Pessoa a 400mts.
Este apartamento está inserido num condomínio singular que beneficia de uma sala de condomínio com 116m2, lavandaria comum e terraço na cobertura.
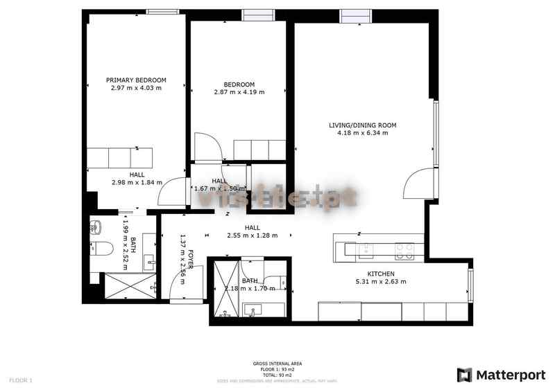
Com duas frentes voltadas a Nascente/Sul, este apartamento T3 está localizado num piso intermédio e tem 126m2 distribuídos por:
– Sala e cozinha equipada em open space;
– Arrumos/Despensa;
– WC completo;
– 2 Quartos;
– 1 Suite e respetivo WC;
– Varanda com 11m2;
Para sua maior comodidade este apartamento está equipado com aquecimento central, bomba de calor, vídeo porteiro a cores, equipamentos de cozinha marca SIEMENS e domótica (regulação de iluminação sala/cozinhas).
Complementa-se com um lugar de garagem.
Marque já a sua visita junto de um dos nossos consultores imobiliários.
RÉPLICA, uma referência imobiliária.
Com 30 anos de atuação no mercado nacional, aplicamos as boas práticas e metodologias que privilegiam Proprietário e Comprador, proporcionando os melhores resultados para todos os intervenientes.
Trabalhamos com um posicionamento de rigor na prestação de serviços imobiliários, apoiando a nossa atividade na experiência da nossa equipa de profissionais e em soluções eficazes de publicidade e marketing.
Garantimos a máxima discrição e serviço de excelência.
Sem preocupações – nós tratamos de tudo.





























