
Apartamento T4 à venda na rua Abade Loureira, São Vicente, Braga
Apartamento T3+1 novo com logradouro, lugar de garagem e arrumos no centro de Braga.
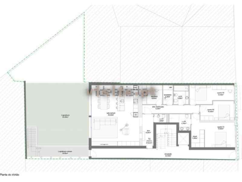
O apartamento tem sala e kitchenette estilo "open space" com acesso ao logradouro, três quartos sendo um deles suite com closet, um outro quarto que pode ser utilizado como escritório, lavandaria, três casas de banho, hall de entrada.
A sala/kitchenette é um espaço bastante amplo, com 50m2, e com muita luz natural pois tem acesso direto ao jardim das traseiras. O logradouro tem 63,80m2.
Todos os quartos têm roupeiros embutidos.
Das três casas de banho duas delas são completas e a outra é de serviço.
Tem lugar de garagem e arrumos nas traseiras, tendo uma estrada de acesso urbana.
CARACTERÍSTICAS GERAIS
– Pavimento em soalho flutuante
– Porta de entrada de segurança, em madeira e estrutura de aço completa
– Sancas para cortinados
– Móveis de cozinha em termolaminado com interior em laminado hidrófugo
– Louça sanitária suspensa, base de duche com resguardo e espelho nas casas de banho
– Roupeiros com portas em melamina e interior em linho
– Caixilharia de PVC com vidro duplo
– Exaustor na cozinha
– Pré-instalação de ar condicionado
– Iluminação com focos de teto
– Guardas em ferro pintado nas varandas
O apartamento terá acabamentos modernos. Fica no rés do chão de um prédio que será completamente reconstruído e que terá somente três andares e, consequentemente, poucos moradores.
A data prevista de finalização é julho de 2024.
Devido à sua excelente localização, muito central e numa zona habitacional calma, este poderá ser um investimento bastante interessante.
Fica localizado numa rua com moradias e prédios pitorescos, a cerca de 250m do Mercado Municipal, a 500m do Campo da Vinha, a 600m do Jardim de Santa Bárbara, Rua dos Capelistas e Praça da República. Devido à sua localização central tem acesso privilegiado a Transportes públicos (a Praça de táxis e a Central de Camionagem ficam a 500m), a zonas comerciais, serviços e valências, nomeadamente escolas, espaços desportivos, supermercados, instituições bancárias, parques de estacionamento, restaurantes, cafés, parques infantis e espaços verdes.



























