
Apartamento T5 à venda em Zona Ribeirinha, Portimão Cidade, Portimão
Neste andar apalaçado, que já foi casa de um visconde, escola e casa de família, pode agora ser seu!
Palacete de 1889 com arquitetura deslumbrante do final do séc. XIX. Originalmente residência do Visconde da Rocha de Portimão, Frederico da Paz Mendes, foi completamente restaurado no período de 2002-2004
Preocupação principal do restauro foi a preservação do original e dos pormenores singulares que valorizam e dão carácter ao palacete, bem como torná-lo numa habitação moderna e acolhedora:
– Tetos trabalhados do séc. XIX foram todos restaurados;
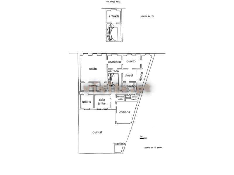
– Porta de entrada original de 1889 restaurada;
– Escadaria monumental (em forma de serpente) que liga a entrada da casa ao piso superior;
– O chão de madeira de pinho de Riga original de 1889, renovado e conservado.
– O poço decorado com azulejos arabescos (presente nas fotos, no quintal). A cisterna, totalmente drenada, tem cerca de 20 m2 no fundo e 4 m de altura;
– O Lanternim, cúpula original da casa, oferece uma vista panorâmica 360º sobre o rio Arade, Portimão e Monchique e promove o arejamento da casa.
– Na cozinha: bancadas largas e chão em granito de Monchique, Sienito, pedra única no mundo. Azulejos originais;
– Na casa de banho maior: chão, duche, lavatório e prateleiras totalmente em mármore português, Alpenina;
– A canalização e infraestrutura elétrica foram ambas substituídas de raiz durante o período de restauro.
– Localização central na cidade de Portimão, na primeira linha da margem do rio Arade, com Jardim Visconde Bívar a 50 metros; zona antiga com mercearias, lojas de bairro, cafés e restaurantes; menos de 5 min a pé do Teatro Municipal de Portimão; 10 min da Praia da Rocha e poucos mais minutos de vários campos de golfe;
– Possibilidade de ancoradouro para barco em frente da casa;
– Vista sobre o Rio Arade pelas 7 janelas/varandas ao longo do 1º andar;
– Entrada espaçosa pelo rés-do-chão (piso 0);
– Sótão espaçoso, ideal para arrecadação, com escadas para a cúpula (2º e 3º andares);.


























