
Duplex à venda na rua das Oliveiras, Quelfes, Olhão
Apartamento T2 localizado em Urbanização de referência com piscina, perto da cidade de Olhão.
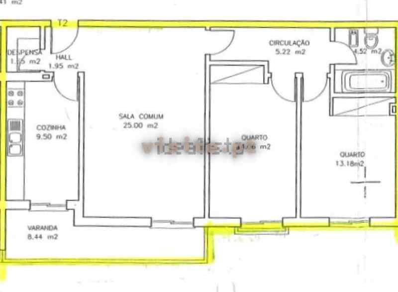
Composto por sala, cozinha com despensa, mezanine com sala de jogos e arrumos e 2 quartos em suite.
– Toda a casa em parquet, exceto cozinha e casas de banho
– Sala com paredes decoradas com pedra natural
– Caixilharia de alumínio com vidro duplo e com rede de mosqueteira
– Iluminação em Led
– Casas de Banho com loiças suspensas e móveis de arrumação
– Estacionamento na cave para duas viaturas
-Material de manutenção física (passadeira e bicicleta estática)
-Condomínio com espaços verdes e de lazer
– O Apartamento é vendido todo mobilado, conforme as fotografias, com móveis de qualidade superior.
Excelente oportunidade para passar férias, rentabilizar e habitação própria.
Para mais informações ou visitas entre em contacto com a 360ºProperties.























