Moradia independente à venda em Apúlia e Fão, Esposende
4 Moradias V4 térreas de Luxo em Loteamento privado em Ofir – Esposende
Moradia com acabamentos de alta qualidade
Marque visita.
Características:
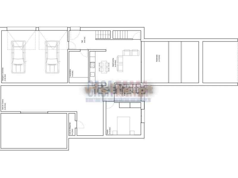
Moradias em condomínio fechado, com apenas 4 habitações, cada uma inserida em lote de terreno de 1000 m2 vedado e com piscina individual, imóvel de 2 andares que se desenvolve à volta da piscina, no primeiro andar temos dispõe de sala comum com cozinha em open space, 3 suites e 4 WCs, no piso inferior este imóvel oferece garagem para 2 carros com arrumos, adega, sala, cozinha, quarto, wc e escadas de acesso para o piso superior.
– Área útil: 250m2
– Área de terreno: 1000m2
– 4 Suites
– Roupeiros embutidos
– 5 WC com luz indireta
– Louças sanitárias suspensas
– Arrumos
– Escritório
– 2 Cozinhas mobiladas e equipadas (com ilha)
– Lavandaria
– Vidros duplos
– 2 Salas
– Estores elétricos
– Aquecimento central
– Painéis solares
– Aspiração central
– Alarme
– Cave (com sala, cozinha, quarto e WC)
– Luz indireta
– Vistas piscina
– Vistas jardim
– Piscina
– Pinhal
– Jardim
– Fachada toda em vidro
– Garagem para 2 carros
-A 1 min da praia
– Bons acessos a zonas de lazer
– A 5 min da A28
Marque já a sua visita!






















